Neues Reiheneinfamilienhaus (3)
- Zimmer3.5
- Wohnfläche76 m2
Grunddaten
Konditionen
Verkaufspreis:
Eigenschaften
Furnishings
Beschreibung
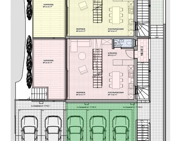
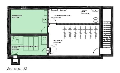
Objektbeschreibung: Hinweis: Auf Anfrage detaillierte Verkaufsdokumentation erhältlich. Hauptangaben: Verfügbarkeit: Sommer 2028 Objekttyp: Reiheneinfamilienhaus Anzahl Zimmer: 3.5 variabel Anzahl Badezimmer: 1 exkl. Gäste-WC Wohnfläche: 76 m2 Nutzfläche: 105.5 m2 Grundstückfläche: 100 m2 Baujahr: 2028 Beschreibung: Im Rahmen eines hochwertigen Neubauprojekts entstehen drei stilvolle Reiheneinfamilienhäuser, die durch ihre flexibel gestaltbaren Grundrissvarianten überzeugen. Jede Einheit bietet die Möglichkeit, aus mehreren durchdachten Raumaufteilungen zu wählen – ideal für Familien, Paare oder Einzelpersonen mit Platzbedarf. Die Grundrisse wurden mit besonderem Fokus auf Wohnqualität, Funktionalität und Gestaltungsfreiheit entwickelt. Ob grosszügiger Wohn- und Essbereich, zusätzliches Arbeitszimmer, offene Küche oder Rückzugsorte im Obergeschoss – hier entsteht ein Zuhause, das perfekt zu Ihrem Lebensstil passt. An der ruhigen Britschenmattstrasse 4 profitieren zukünftige Bewohnerinnen und Bewohner von kurzen Wegen. Die Einkaufsmöglichkeiten befinden sich in kurzer Distanz – darunter ein ALDI-Supermarkt an der Bernstrasse, der in wenigen Gehminuten erreichbar ist. Schulen und weitere wichtige Dienstleistungen liegen direkt im Dorf und sind bequem zu Fuss erreichbar. Dank der nahegelegenen Bushaltestellen ist Gals gut an den öffentlichen Verkehr angebunden. Der Autobahnanschluss Richtung Bern, Biel und Neuenburg ist über die Hauptachsen Neuenburgstrasse und Bernstrasse schnell zu erreichen. Highlights: + Flexible Grundrissvarianten wählbar + Holzbauweise für angenehmes, gesundes Raumklima + Helle, offene Wohnbereiche mit hoher Wohnqualität + Eine grosse Nasszelle + Separates Gäste WC + Elektrische Storen + Fussbodenheizung + Dreifach verglaste Fenster + Nachhaltige Energiegewinnung dank eigener Photovoltaik-Anlage + Fernwärmeanschluss für effiziente, ökologische Wärmeversorgung + Grosser Keller mit eigenem Waschraum + Balkon für zusätzlichen Aussenraum + Ein Autoabstellplätze mit Vorinstallation für E-Ladestation + Ruhige, naturnahe Lage + Zwischen Bieler- und Neuenburgersee + Und noch vieles mehr… Umgebungsinformationen: + Supermarkt ALDI 12 min. (zu Fuss) + Primarschule 2 min. (zu Fuss) + Gemeindeverwaltung 2 min. (zu Fuss) + Öffentliche Verkehrsmittel 6 min. (zu Fuss) Gals Dorf Nachhaltigkeit & Komfort: Der Baustoff Holz sorgt für ein angenehmes und gesundes Raumklima und steigert das Wohlbefinden der Bewohnerinnen und Bewohner. Die Kombination aus Fernwärme und Photovoltaik verbessert zusätzlich den ökologischen Fussabdruck und sorgt für tiefe Betriebskosten. Verwirklichen Sie Ihren Wohntraum: Reservieren Sie jetzt eines der drei Häuser und gestalten Sie Ihren Grundriss sowie den Innenausbau ganz nach Ihren Wünschen – für ein Zuhause, das wirklich zu Ihnen passt. Highlights: LAGE: Zwischen Bieler- und Neuenburgersee NUTZUNG: Variable Raumaufteilung QUALITÄT: Nachhaltigkeit AUSSENBEREICH: Balkon, Terrasse und Garten Grundriss / Raumaufteilung: Variable Raumaufteilung
Entfernungen
Fahrzeit Bank |
- | Fussweg Geschäfte |
- |
Fahrzeit Spital |
- | Fussweg Sekundarschule |
- |
Entfernung Geschäfte |
- | Entfernung Primarschule |
- |
Beschreibung
Objektbeschreibung:
Hinweis:
Auf Anfrage detaillierte Verkaufsdokumentation erhältlich.
Hauptangaben:
Verfügbarkeit: Sommer 2028
Objekttyp: Reiheneinfamilienhaus
Anzahl Zimmer: 3.5 variabel
Anzahl Badezimmer: 1 exkl. Gäste-WC
Wohnfläche: 76 m2
Nutzfläche: 105.5 m2
Grundstückfläche: 100 m2
Baujahr: 2028
Beschreibung:
Im Rahmen eines hochwertigen Neubauprojekts entstehen drei stilvolle Reiheneinfamilienhäuser, die durch ihre flexibel gestaltbaren Grundrissvarianten überzeugen. Jede Einheit bietet die Möglichkeit, aus mehreren durchdachten Raumaufteilungen zu wählen – ideal für Familien, Paare oder Einzelpersonen mit Platzbedarf.
Die Grundrisse wurden mit besonderem Fokus auf Wohnqualität, Funktionalität und Gestaltungsfreiheit entwickelt. Ob grosszügiger Wohn- und Essbereich, zusätzliches Arbeitszimmer, offene Küche oder Rückzugsorte im Obergeschoss – hier entsteht ein Zuhause, das perfekt zu Ihrem Lebensstil passt.
An der ruhigen Britschenmattstrasse 4 profitieren zukünftige Bewohnerinnen und Bewohner von kurzen Wegen. Die Einkaufsmöglichkeiten befinden sich in kurzer Distanz – darunter ein ALDI-Supermarkt an der Bernstrasse, der in wenigen Gehminuten erreichbar ist. Schulen und weitere wichtige Dienstleistungen liegen direkt im Dorf und sind bequem zu Fuss erreichbar.
Dank der nahegelegenen Bushaltestellen ist Gals gut an den öffentlichen Verkehr angebunden. Der Autobahnanschluss Richtung Bern, Biel und Neuenburg ist über die Hauptachsen Neuenburgstrasse und Bernstrasse schnell zu erreichen.
Highlights:
+ Flexible Grundrissvarianten wählbar
+ Holzbauweise für angenehmes, gesundes Raumklima
+ Helle, offene Wohnbereiche mit hoher Wohnqualität
+ Eine grosse Nasszelle
+ Separates Gäste WC
+ Elektrische Storen
+ Fussbodenheizung
+ Dreifach verglaste Fenster
+ Nachhaltige Energiegewinnung dank eigener Photovoltaik-Anlage
+ Fernwärmeanschluss für effiziente, ökologische Wärmeversorgung
+ Grosser Keller mit eigenem Waschraum
+ Balkon für zusätzlichen Aussenraum
+ Ein Autoabstellplätze mit Vorinstallation für E-Ladestation
+ Ruhige, naturnahe Lage
+ Zwischen Bieler- und Neuenburgersee
+ Und noch vieles mehr…
Umgebungsinformationen:
+ Supermarkt ALDI 12 min. (zu Fuss)
+ Primarschule 2 min. (zu Fuss)
+ Gemeindeverwaltung 2 min. (zu Fuss)
+ Öffentliche Verkehrsmittel 6 min. (zu Fuss) Gals Dorf
Nachhaltigkeit & Komfort:
Der Baustoff Holz sorgt für ein angenehmes und gesundes Raumklima und steigert das Wohlbefinden der Bewohnerinnen und Bewohner. Die Kombination aus Fernwärme und Photovoltaik verbessert zusätzlich den ökologischen Fussabdruck und sorgt für tiefe Betriebskosten.
Verwirklichen Sie Ihren Wohntraum: Reservieren Sie jetzt eines der drei Häuser und gestalten Sie Ihren Grundriss sowie den Innenausbau ganz nach Ihren Wünschen – für ein Zuhause, das wirklich zu Ihnen passt.
Highlights:
LAGE: Zwischen Bieler- und Neuenburgersee
NUTZUNG: Variable Raumaufteilung
QUALITÄT: Nachhaltigkeit
AUSSENBEREICH: Balkon, Terrasse und Garten
Grundriss / Raumaufteilung:
Variable Raumaufteilung















